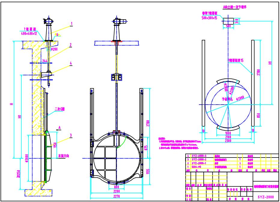
SYZ2000铸铁圆闸门安装图纸下载
万彩网100线路SYZ2000铸铁圆闸门安装图纸下载

服务热线13852217951
SYZ2000铸铁方闸门安装图纸下载 ,我们提供DWG图纸下载查阅,CAD软件可查阅。
点击下载
SYZ-2000铸铁镶铜圆闸门.rar

SYZ2000铸铁圆闸门选用须知:
1、 选用闸门时应注明H值(闸门中心至启闭机底部平台高度)。
2、 启闭机应根据表中启闭力及自动化程度确定,具体可参考启闭机样本。
3、 平台设计负荷应考虑正反双向承受(关闭力参考开启力)。
4、 轴导架是根据井深不同而设定的,设计时应与联轴器不干涉。
5、 工作时整条螺杆,联轴器、闸板都做上下移动为明杆闸门,工作是螺杆不移动,闸板上下移动称为暗杆闸门。
6、 方向承压闸门应选用时应注明,正向承压闸门当用于随受么向水压时,水头应<2.5m。
7、 暗杆闸门宜装于风景区或道路中间的窖井内,此种闸门自带开启装置,不需专用启闭机。
8、 订货时应注明H,并注明单独闸门(与配套启闭机)的具体名称、型号、规格。
9、 本厂可承制其它材料(不锈钢、碳钢、铝合金、塑料)或特殊形工闸门。
10、本厂供货不含任何预埋件,所以闸门布置参照上页。
11、本厂所提供样本如有修订不另行通知。
本文来自于:htmzw.com