ZSZ制水闸门
ZSZ制水闸门是给排水工程、水利、水电工程中常用的拦水、止水设备,ZSZ制水闸门四面止水,适用于渠道或孔壁的安装。
一、ZSZ制水闸门简介
万彩网100线路 ZSZ制水闸门是给排水工程、水利、水电工程中常用的拦水、止水设备,ZSZ制水闸门四面止水,适用于渠道或孔壁的安装。
二、产品图片

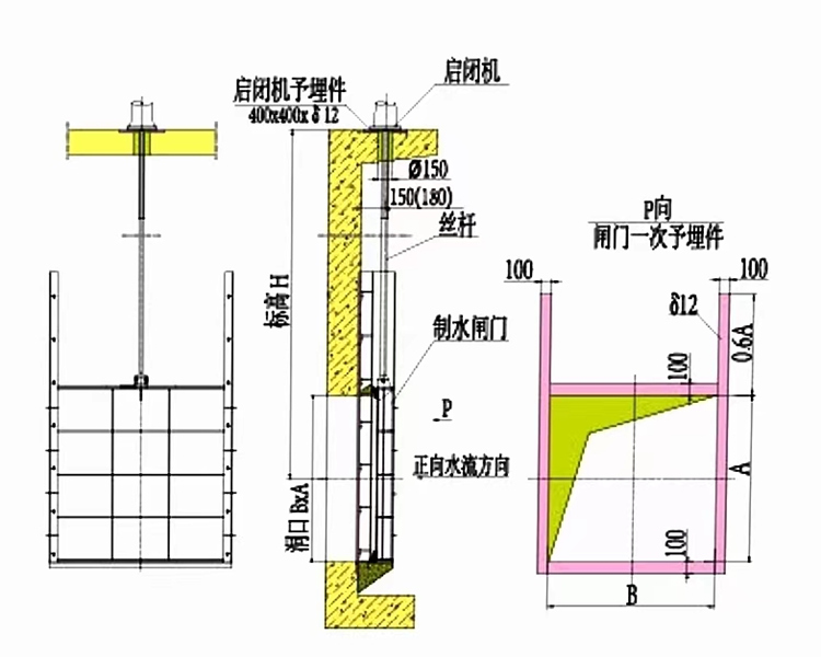
三、产品结构安装图

四、ZSZ钢制闸门启闭机厂家选用说明
1.CBZ型配套专用启闭装置,仅需注明手动或电动即可,无需另外注明启闭机型号。
万彩网100线路 2.ZSZ型插板闸门按铸铁闸门启闭力计算方法计算。
3.DLZ型采用电动单梁吊车(电动葫芦、手动葫芦)配抓落机构启闭。
万彩网100线路 4.PGZ型可按启闭力配用我公司生产的Q系列启闭机,也可用卷扬式启闭机、电动葫芦配自动抓落机构。
本文来自于:htmzw.com